【机情无限 精彩毕设】机械2026届毕业设计(论文)中期检查优秀案例分享第三十七期——高速列车窗形风阻制动板结构设计与气动性能分析
学生姓名:何俊霖
班 级:车辆2022-06班
指导教师:张硕果
毕设题目:高速列车窗形风阻制动板结构设计与气动性能分析
一、概况
1.选题意义
随着我国高速铁路技术的快速发展,高速列车运行速度不断提高,列车在高速运行过程中所面临的制动问题日益突出。在紧急制动、下坡运行及复杂工况下,单纯依靠轮轨黏着制动已难以满足安全性和可靠性的要求。时速300km/h以上的高速列车通常采用轨道涡流制动、磁轨制动和风阻制动3种非黏制动方式,但轨道涡流制动和磁轨制动均是在转向架下增加制动装置,会增加列车的簧下质量,且会产生磁辐射和轨道磨损等各种影响。因此,研究并合理应用气动制动技术,对于提升高速列车运行安全性具有重要意义。空气动力学设计技术在航空运输领域有着广泛应用,航空各类飞行器设计中,通常通过机身流线型控 制、翼剖面气动设计以及在机体表面设置扰流板或减速板的方式调整地面滑行或飞行过程中的升力和阻力目标需求。由于轨道交通运行速度远低于航空运输,因此该技术还处于探索阶段。
本研究可为高速列车新型风阻制动装置的结构设计与气动性能评估提供理论依据和设计参考,对提升高速列车制动安全性具有现实意义。日本对空气动力制动方式研究相对较早,但所能查到的文献较少,特别是比较详细的关于制动风翼外形的研究未见报道。国内则更多对窗型制动板的气动设计进行优化设计。 现有高速列车风阻制动装置多采用多个单向风阻制动板串联布置的方式,其结构形式相对单一,且在多制动板协同工作过程中,存在制动效果利用率不高等问题。相比之下,针对双向风阻制动板机械结构的系统性研究较为有限,相关结构形式及展开方式仍有较大的研究空间。
本课题旨在设计一种适用于高速列车的双向窗型风阻制动板机械结构,满足高速列车 双向风阻制动需求并进行气动性能分析。通过本毕业设计的开展,可加深对高速列车风阻 制动装置结构构成及工作机理的理解,系统锻炼机构设计与工程分析能力,提高自身专业素养与综合设计能力。相关研究成果亦可为双向风阻制动装置的结构设计提供参考,对拓展高速列车风阻制动技术的研究思路具有一定的工程与学术意义。
2.任务分解
(1)资料查询及外文文献翻译根据设计任务书,大量检索和阅读有关高速列车风阻制动板的国内外文献,了解该选题在国内外的研究情况,了解相关理论知识和研究方法,建立良好的理论基础,为进一步的自主设计分析奠定基础和提供支撑。
(2)机构方案设计与三维模型建立先建立机构草图使其能够实现目标功能,然后对关键尺寸进行计算和校核,接下来根据计算的尺寸进行三维模型的建立与装配。
(3)三维运动学仿真使用Solidworks对建立的装配体进行运动学仿真模拟,确保机构功能的可用。
(4)气动仿真使用Fluent软件对设计的模型进行空气动力学仿真,处理数据并导出云图。
(5)工程图纸绘制根据三维模型绘制装配图、各非标准零件的零件图。
(6)毕业设计说明书的撰写整理模型和仿真数据,严格按照毕业论文撰写规范完成毕业设计说明书。
二、已完成工作
1. 已完成相关文献调研,完成三篇外文文献翻译
检索并阅读高速列车空气制动板设计应用现状以及其制动效果相关的文献,了解空气制 动板的研究现状及应用现状。完成了《Characteristics of the Aerodynamic Brake of the Vehicle on the Yamanashi Maglev Test Line》、《Development of the superconducting maglev vehicles on the Yamanashi test line》、《Development of Aerodynamic Brake Device for High-speed Railway》三篇外文文献的翻译。


图3-1 外文文献翻译工作
2. 机构方案设计与三维模型建立
(1)完成了对机构的选型、三维草图的建立,初步实现目标功能:

图3-2 窗型风阻制动板三维模型 图3-3 闭锁机构三维草图

图3-4 齿轮传动机构 图3-5 液压缸限位机构
1)连杆滑块机构:采用连杆滑块作为制动板的主体结构,通过控制滑块的限位从而控制制动板的角度,通过驱动滑块亦可驱动制动板关闭。
2)齿轮传动机构:采用四个直齿轮的齿轮组实现两侧制动板的同步开启功能。
3)液压缸限位机构:通过预先调节液压缸的伸出长度,实现对滑块的限位,进而实现对制动板开启角度的控制。
4)齿条棘爪机构:滑块上设置可控制的棘爪,滑块开启时在棘齿条上运动,到达预设角度后棘爪作用,使制动板保持在预设角度;关闭制动板时,控制棘爪抬起,同时控制液压缸伸出,制动板在重力和液压缸的作用下关闭。
5)闭锁机构:采用锁舌与弹簧联动的方式,实现启动时弹出制动板、关闭时锁定制动板的两个功能。
(2)机构外形尺寸确定及关键尺寸计算校核
参考文献表明,CRH380A高速列车的标准车体横断面尺寸约为宽3.4m,高3.7m,考虑高速列车顶部两侧有圆角,本次空气制动减速板设计取宽度为2m。由《铁路技术管理章程》可知接触网距离钢轨顶面高度不超过6500mm,最低点高度不低于5150mm,CRH380A高度约为3.7m,即车顶距接触网间距约为1.45-2.8m;风阻制动板尺寸对气动性能具有重要影响。研究表明,随着制动板尺寸增大,虽然阻力有所提高,但同时会引起气动干扰增强及结构载荷显著增加。另一方面,受接触网高度及弓网动力学约束,车顶上方可用空间有限。综合气动性能与结构安全要求,工程上通常将风阻制动板展开高度控制在较小范围内。因此,本次结构设计取空气制动减速板的高度为0.4m。
基于此外形尺寸(2000mm*400mm),估算其单制动板在380km/h时速下垂直展开的有效制动力约为7.1kN,因此设计制动力取7.1kN。
基于设计的制动力计算了轴、齿轮、键等关键零件的安全尺寸,并采用足够的安全系数,保证结构的强度及整体的轻量化。
图3-6 关键零件尺寸设计校核草稿
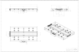
(3)完成三维模型建立
使用Solidworks对所有非标准零部件进行建模并完成了装配:
图3-7 三维建模与装配
3. 完成三维运动学仿真
使用Solidworks运动算例对机构的目标功能进行了验证,导出了关键机构的运动动画。
图3-8 三维运动学仿真
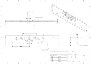
4. 完成绘制工程图
基于三维模型绘制了A0装配图一张,A2零件图3张,A3零件图6张,A4零件图7张。


图3-9 装配图及部分零件图
5. 完成毕业设计说明书绪论及机械设计部分初稿撰写
根据已完成的工作,对毕设说明书的绪论、机械设计计算、三维模型建模及仿真几个章节进行了初步的撰写。






图3-10 毕业设计说明书部分内容
三、下一步工作计划
1. 气动仿真
进行气动仿真分析部分的工作,选用窗型制动板模型的特定展开角度作为典型模型,导入Fluent进行气动分析,并得出其升力、阻力曲线及速度云图;
2. 继续完善设计说明书剩余部分的撰写
3. 汇总毕业设计所有文件、参考文献,准备毕业设计答辩。
问题一:如何应对制动板开启时的冲击载荷?
回答:在尺寸设计计算时采用较多的安全冗余,传动部分零件选用强度更高的材料,同时限位的液压杆也可以起到一定的缓冲作用,经过计算校核可以满足冲击载荷的要求。
问题二:你的设计有没有冗余或安全保护措施?
回答:有。制动板在关闭状态下限位液压杆完全伸出,可以将制动板限位在关闭状态,即使闭锁机构的锁舌失效,也能确保制动板不会误开启,保证正常行车的安全。
问题三:你后续的工作是什么,要进行力学仿真吗?
回答:后续的工作是使用Fluent对模型进行气动仿真,本次课设只进行结构设计和气动仿真,不包含力学仿真。
在工具使用方面,我进一步提高了对Solidworks的掌握程度,能够更加熟练地完成零件建模、装配以及工程图绘制,对Solidworks Motion的仿真流程更为熟悉,同时也理解了工程图规范在实际设计中的重要性。
其次,在设计思路上,我学会了从整体出发进行系统性考虑,而不是只关注局部结构。在方案制定过程中,我逐渐建立了从功能需求出发,经过方案对比、参数确定再到结构实现的完整设计流程,对工程设计的完整性有了更清晰的认识。
通过与指导老师的定期沟通交流,我逐渐提高了对自身设计思路的梳理与表达能力,能够更加清晰、有逻辑地阐述设计方案。同时,在交流过程中不断吸收和整合指导教师提出的意见与建议,使原有方案得到优化和完善,也增强了我对问题进行多角度分析的能力。